IMPRIMERIE BOUSSAA
CHARGUIA II - Tunis 2012
IDENTIFICATION DU PROJET : Construction d’une Imprimerie « Imprimerie BOUSSAA »
LOCALISATION : Charguia -Tunis
Maître d’Ouvrage : Sté Acrylaine
Surface du projet : 5 580 m²
Date de désignation : 2012
Date de fin de mission : En phase exécution
Coût du projet : 4.500.000 TND
LOCALISATION : Charguia -Tunis
Maître d’Ouvrage : Sté Acrylaine
Surface du projet : 5 580 m²
Date de désignation : 2012
Date de fin de mission : En phase exécution
Coût du projet : 4.500.000 TND

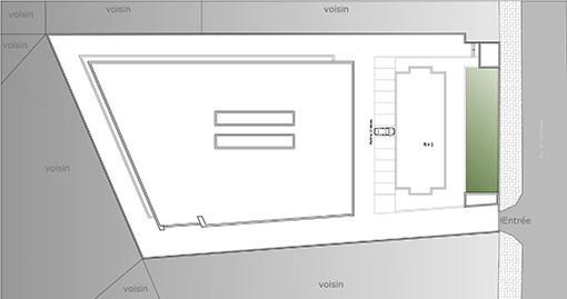
DESCRIPTION DU PROJET :
Le projet consiste en la construction d’une imprimerie sur un terrain de 4100 m² de superficie sur 3 niveaux (R+2), les plateformes couvertes sont des espaces de production à 95% de leur surfaces englobant un nombre de 40 ouvriers en moyenne. Le reste sera des bureaux englobant 10 personnes au maximum. Le terrain présente déjà un immeuble R+1 occupé par 10 personnes environ L'imprimerie Boussaa constitura de part son architecture avant-gardiste et le matériel à la pointe de la technologie qu'elle abritera, une des imprimerie les plus performante et moderne du pays.
Le projet consiste en la construction d’une imprimerie sur un terrain de 4100 m² de superficie sur 3 niveaux (R+2), les plateformes couvertes sont des espaces de production à 95% de leur surfaces englobant un nombre de 40 ouvriers en moyenne. Le reste sera des bureaux englobant 10 personnes au maximum. Le terrain présente déjà un immeuble R+1 occupé par 10 personnes environ L'imprimerie Boussaa constitura de part son architecture avant-gardiste et le matériel à la pointe de la technologie qu'elle abritera, une des imprimerie les plus performante et moderne du pays.




