Résidence la palmeraie
Mutuelleville - Tunis 2013
LOCALISATION: Mutuelleville - Tunis
Surface du projet: 3000 m²
Date de désignation: 2013
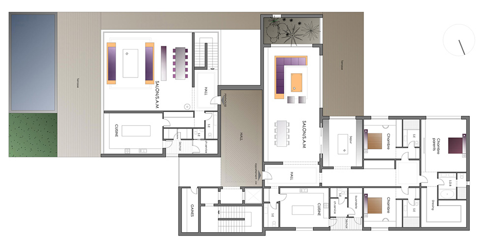
DESCRIPTION DU PROJET :
Le projet se situe à Mutuelleville, rue Docteur Burnet. Il s'agit d'un immeuble résidentiel de très haut standing qui comprend cinq appartements S+3 et un duplexe qui se développe sur le premier et deuxième étage avec jardin et piscine. Le sous-sol offre une capacité de 30 places de parking ainsi qu'une grande salle de fitness privée. Les appartements au rez de chaussé bénéficient chacun d'un grand jardin avec piscine. Le volume aux lignes épurées s'intègre parfaitement dans le tissu urbain dans lequel il s'implante.





